RIBOSE STUDIO|魔戏空间案例

项目名称:核糖文化RIBOSE品牌(上海)办公空间
设计机构:魔戏空间设计 ®  ABDdesign ®
项目地址:上海市文通国际广场16层
主要材料:烤漆板、PVC、钢板、艺术涂料
项目面积:160㎡
完成时间:2019-10
项目负责:张博  GeGe  Waison  Evak


罗丹 :工作就是人生的价值,人生的欢乐,也是幸福之所在。
设计的魅力是常常试图打破边界与固有局限性,让空间出现更多的可能性与趣味性,使置身于空间的人尝试不同的体验。
RIBOSE STUDIO上海新办公室更多想要表现“一股舒适的极简主义”,删繁就简,以最经典的白色为主题搭配色调(白色让工作更加专注),没有繁琐的设计和过多的装饰,减去办公中的压抑感。
自由无拘的沟通对于团队的创新至关重要
开放式的办公空间是有效获取信息和激发灵感的地方。虽然空间有限,但希望发挥最大的性能,在办公室与展示区开辟出半通透的两个洽谈区域 。在这里,未知的一切与既有的常识记忆产生传导,想象思维的触角开始蔓延。


在你拥有的一切之下,发现你想要的生活 
人和人、自然和空间的关系 是一种氛围,而非空间本身的实体感

设计师力求体现人们在空间中有怎样的体验,与自然的对话。模糊室内外的空间界线,将建筑室内与景观合为一体,丰富植物种类高低错落构成了不同层级的小花园,使每一个角落都能被绿色充满。自然、通透是整个空间遵循的主题,使用者可以逃离都市雾霾的现实,犹如置身于宁静的自然花园,在紧张的工作中使身心得到放松,同时提高工作效率。

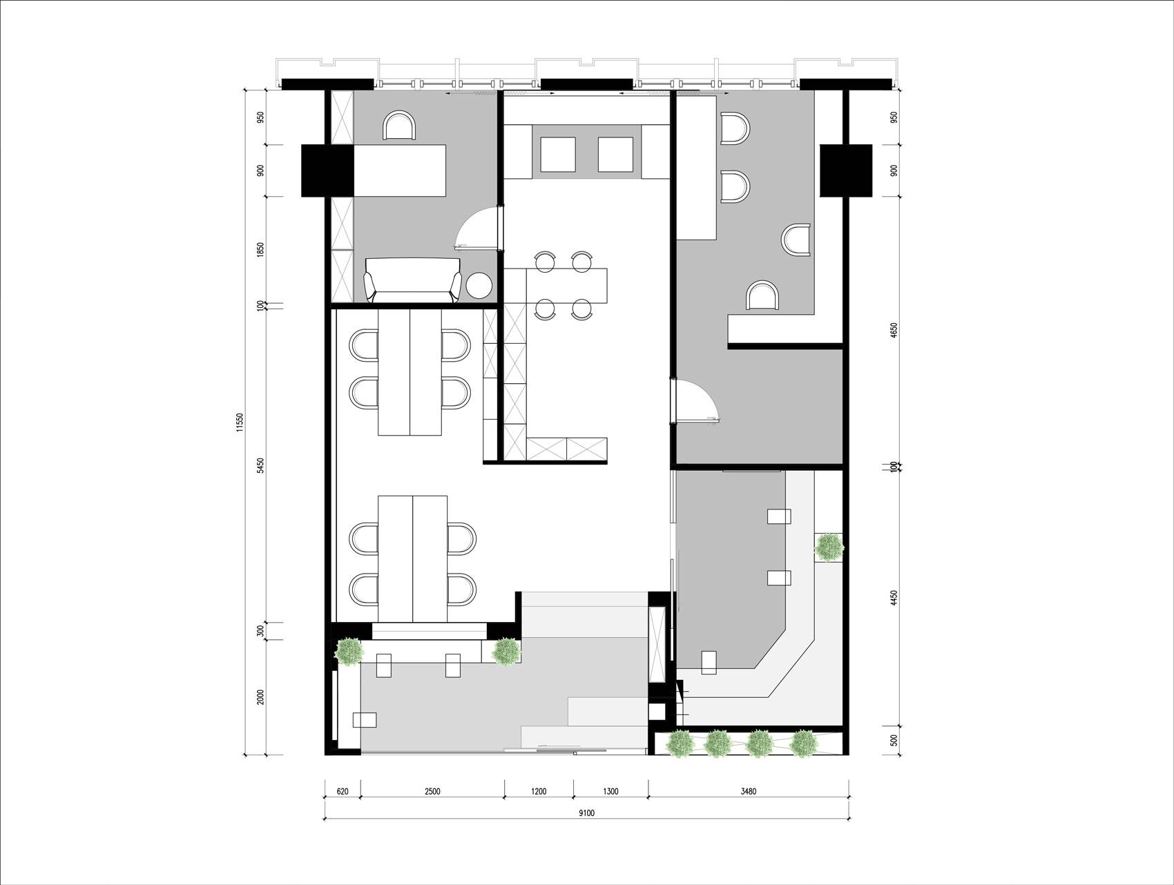
Entrance . 入口

入口是一个抬高的等候区域,简单硬朗的黑色线条与灰色艺术水泥涂料的层次运用,丰富空间感,大片的透白玻璃以及灯光的设计,保证了充足的照明需求。座位背后做了一个取景窗口的设计,窗口可以陈列部分公司的产品,和右边展示柜呼应,也直观的展示着公司的品牌形象。

Meeting Room. 会议室
由于本案空间处于办公大楼内部,顶面和地面有所局限,设计师将会议室部分天花板做露明处理,以便提供开阔舒适的办公空间,错落的天花板与地面高低处理为空间融入节奏感。
我们希望每一个空间都不是完全固定的作态,台阶与绿植的相互交织构成了不同的感受:阅读,休息,洽谈 …
Office. 员工办公室
办公室不仅仅是工作的场所 ,每一个办公室都有它的灵魂 ,这和情绪有关,和职业有关,和行为有关。创造设计与使用者之间的情感和需求连接,才是设计的根本。
灰色与米黄色的融入,传达出亲近感 ,与黑白色调的墙面形成丰富的肌理层次 ,同时,取景框外的“故事” 使得办公环境更加轻松,提升空间的舒适感,通透感 。平面设计元素运用结合灯光设计,丰富视觉效果。
Pantry. 茶水间/Display area. 展示区
自由无拘的沟通对于团队的创新至关重要。开放的茶水休闲区是有效获取信息和激发灵感的地方。黑色百叶窗折射的光影,充足的自然光营造高效的工作环境。(黑色百叶窗略显高级感)
高吧台分隔出两个洽谈区,提供了一种更为随性、更利于面对面交流的洽谈形式。


Boss office. 老板办公室
Boss的空间增添了二三分私密性,与外面的空间保持一定的独立,用玻璃门分隔开。但在保证个人能最大限度沉浸思维创作的同时,又能及时地与伙伴交流互换,碰撞不同的思想。
沉稳的木制茶几上,摆放的绿枝桠仿若思想的触手,与小株绿植串联起空间动线。黑色皮质沙发与木地板的强烈对比增加了几分现代感,再搭配暖色系列的艺术落地装饰画。


 现场实拍

在 线 留 言

请您留下联系方式与咨询内容

设计总监将在3个工作日内进行联系回复

微信“扫一扫”分享到
朋友圈或朋友